Features & Amenities

Interior

  • Other Interior Features

    Ceiling Fan(s), Double Vanity, Granite Counters, Walk-In Closet(s)

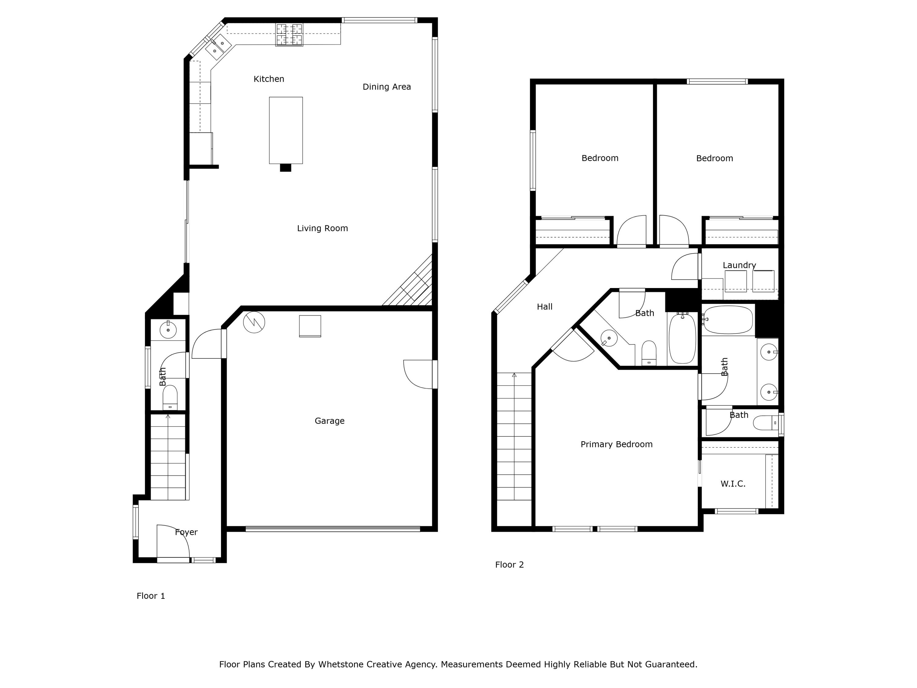
  • Total Bedrooms

    3

  • Bathrooms

    2

  • 1/2 Bathrooms

    1

  • Basement YN

    NO

  • Cooling YN

    YES

  • Cooling

    Ceiling Fan(s), Heat Pump

  • Fireplace YN

    YES

  • Heating YN

    YES

  • Heating

    Electric, Heat Pump

  • Pet friendly

    N/A

Exterior

  • Garage

    Yes

  • Garage spaces

    2

  • Construction Materials

    Frame

  • Parking

    Attached, Garage Door Opener

  • Patio and Porch Features

    Patio

  • Pool

    No

  • View

    Mountain(s)

Area & Lot

  • Lot Features

    Landscaped, Level

  • Lot Size(acres)

    0.14

  • Property Type

    Residential

  • Property Sub Type

    Single Family Residence

  • Architectural Style

    Contemporary

Price

  • Sales Price

    $445,000

  • Tax Amount

    4193.34

  • Zoning

    Sfr-10

  • Sq. Footage

    1, 857

  • Price/SqFt

    $239

HOA

  • Association

    No

School District

  • Elementary School

    Orchard Hill Elem

  • Middle School

    Talent Middle

  • High School

    Phoenix High

Property Features

  • Foundation Details

    Concrete Perimeter

  • Senior Community YN

    NO

  • Sewer

    Public Sewer

  • Tax Lot

    3105

  • Water Source

    Public

Schedule a Showing

Showing scheduled successfully.

<
>
IN PERSON
VIA CHAT

What is 3 + 4 ?


Change time

Mortgage calculator

Estimate your monthly mortgage payment, including the principal and interest, property taxes, and HOA. Adjust the values to generate a more accurate rate.

Your payment

Principal and Interest:

$

Property taxes:

$

HOA fees:

$

Total loan payment:

$

Total interest amount:

$

Location

County

Jackson

Elementary School

Orchard Hill Elem

Middle School

Talent Middle

High School

Phoenix High

Listing Courtesy of Ellie George , Home Quest Realty

RealHub Information is provided exclusively for consumers' personal, non-commercial use, and it may not be used for any purpose other than to identify prospective properties consumers may be interested in purchasing. All information deemed reliable but not guaranteed and should be independently verified. All properties are subject to prior sale, change or withdrawal. RealHub website owner shall not be responsible for any typographical errors, misinformation, misprints and shall be held totally harmless.

Agent Christy Symons Your - Central Oregon Realtor

Broker

Christy Symons Your - Central Oregon Realtor

Call Christy today to schedule a private showing.


* Listings on this website come from the FMLS IDX Compilation and may be held by brokerage firms other than the owner of this website. The listing brokerage is identified in any listing details. Information is deemed reliable but is not guaranteed. If you believe any FMLS listing contains material that infringes your copyrighted work please click here to review our DMCA policy and learn how to submit a takedown request.© 2024 FMLS.
MOTIVATED SELLER... willing to give $5000 in seller credit. This East Medford gem offers a spacious two-story layout with an open floor plan that's perfect for modern living. Downstairs, the kitchen flows seamlessly into the living space with tall ceilings and a slider leading to a backyard that's just the right size—not too big, not too small. All bedrooms are upstairs, including an oversized primary suite with a beautiful bathroom, walk-in closet, and mountain views. Set on a quiet dead-end street, this home offers peace and privacy while being just minutes from restaurants, shopping, and all that East Medford has to offer.

3611 Jerome Lane

Message successfully sent.

What would you like to know?

What is 3 + 4 ?

Related Properties

Terrific location tucked away in a cul-de-sac surrounded by newer homes. Close to everything yet nicely secluded, this single-level 3 bed, 2 bath home offers a large fully landscaped front yard with sprinklers and exterior rock accent. Entry with tile flooring leads to a vaulted living room featuring picture windows, gas fireplace & ceiling fan. Kitchen offers new vinyl plank flooring, custom cabinets, granite countertops, island, & stainless steel appliances including a natural gas range, micro & dishwasher. Huge primary suite with double coffered ceilings, walk-in closet w/built in cabinetry and bath with tile flooring, walk-in shower, dual sinks, and granite counters. Guest bath features tile flooring and granite countertops. Addt'l highlights include wood baseboards, indoor laundry room with tile flooring and extra cabinets, an oversized finished two car garage with sink & fenced backyard with sprinklers and covered patio. Perfect opportunity for first time homebuyers or investors
#220213570

Medford

14 Scholarship Way

3 Beds

2 Baths

1,671 Sq.Ft.

$419,000

MLS#: 220213570

Price reduced
This tastefully remodeled and updated home in the prestigious Alder Creek gated community offers elegance, comfort, and thoughtful design. The heart of the home is a chef's kitchen featuring a large island, granite countertops throughout, custom cabinetry,  tile work and lighting. Soaring ceilings and hardwood floors create a warm, open feel, while the living spaces flow seamlessly for entertaining and everyday living.  Retreat to the luxurious primary suite, complete with a stunning tile shower, walk-in closet, and custom window coverings. Additional features include ample storage and carefully selected finishes that add both function and style. Enjoy the outdoors year-round on the covered patio, surrounded by beautiful, low-maintenance landscaping designed for relaxation and gatherings. Located just minutes from shopping, dining, RVCC golf course, and top medical facilities, this home offers the perfect blend of convenience and privacy.
#220209065

Medford

601 Summerwood Drive

2 Beds

2 Baths

1,764 Sq.Ft.

$419,000

MLS#: 220209065

A new DR Horton community in beautiful Medford! The Berkshire home is a 4 Bedroom 2.5-bathroom 2 story home with a 2-car garage! Open concept floor plan with Quartz countertops, premium laminate flooring, stainless steel appliances with large island and pantry! Hi-efficiency furnace, Smart home package and a home warranty, we've got you covered! See sales agent for more details. Sales office hours are 9:30AM-4:30PM Saturday-Wednesday. Renderings and photos are representational of the plan, but not actual home. Specs, features, colors and masonry vary.
#220213453

Medford

2632 Steadman Avenue

4 Beds

2 Baths

1,860 Sq.Ft.

$437,995

MLS#: 220213453

If you are searching for a great opportunity in a fantastic location this one is worth a look. Tucked away on a quiet end street this newer stick 2017 built home boasts 1 owner. Floor plan offers 3 bedrooms and 2 full bathrooms with a split bedroom design. Front of the home features 2 bedrooms and a full bathroom while the opposite side offers a large primary suite with walk-in closet and full bath. Living room and kitchen feature vaulted ceilings and wood laminate flooring through the entry and main living areas. Bathrooms and laundry have tile flooring and bedrooms are carpeted. Kitchen offers granite counters, custom cabinets, island, and stainless steel appliances. Enjoy indoor laundry room and oversized fully finished 2 car garage w/extra storage. Private backyard features landscaping w/planter boxes creating a comfortable outdoor space. Home offers energy efficiency and a tucked away setting making this an incredible value. Owner carry options preferred with acceptable terms.
#220213477

Medford

2646 Wyatt Drive

3 Beds

2 Baths

1,202 Sq.Ft.

$369,900

MLS#: 220213477

Reduced price! Come and tour this beautiful and well-built home in South Medford! Located directly across the street from SMHS, this home is perfect for a family with kids that want to walk right to school, with easy access to local shopping centers, restaurants and more! This home has 3 bedrooms, 2 full bathrooms and even an enclosed and professionally finished patio to enjoy. The property has RV parking and hookups. Is situated on a corner lot and has plenty of room in the yard for hanging out and relaxing! The yard front and back is dry-scaped for your ease of ownership. The large living room inside is great for hosting friends and family. Kitchen features granite countertops, and plenty of counter space with beautiful hardwood flooring. The bathrooms have skylights to bring in natural daylight, and You can sense the pride of ownership as you walk through this turnkey home and you can expect low maintenance here. Don't miss out on this one, it won't last long!
#220213451

Medford

1401 Diamond Street

3 Beds

2 Baths

1,620 Sq.Ft.

$414,900

MLS#: 220213451

This is the one you don't have to fix. A beautifully maintained single-level home in East Medford where the major updates are already done: dual-fuel HVAC (2024), whole-house PEX plumbing (approx. 2022), and updated vinyl windows throughout. Hardwood floors flow from a bright entry into spacious living areas with coved ceilings, recessed lighting, and a family room featuring a classic brick fireplace. The kitchen shines with custom cabinetry and crown detail, granite counters, subway tile backsplash and stainless appliances. A sunlit flex space works beautifully as an office or breakfast nook. Every bedroom includes a walk-in closet, and granite-topped vanities carry through all bathrooms. The laundry room adds extra cabinetry, counter space, and a utility sink. The primary suite opens directly to a fully fenced backyard with covered patio, curved walkway, mature trees, and storage shed. Located in the sought-after Lone Pine School District.
#220213400

Medford

2610 Roberts Road

3 Beds

2 Baths

2,041 Sq.Ft.

$480,000

MLS#: 220213400

East Medford home with 4 bedrooms, 2.5 baths, large bonus room all  on a large .32 acre lot. Open living and dining areas with beautiful hardwood floors, fireplace w/insert and 2 large picture windows. Remodeled kitchen, cabinets with pullouts & lazy susan, tile floor, Corian counter tops and a built-in desk. Large bonus room with tile flooring overlooks the backyard and has French doors that lead to the covered patio, great for summertime entertaining. Spacious laundry room with large closet. Master with laminate flooring, double vanity, separate  toilet/shower area. Hall bath with tile shower and floor and has a door to the bonus room. Half bath with tile floor and newer vanity.  Large fenced backyard with covered patio, small pond with waterfall feature and  plenty of room for a garden. 2 car garage plus a covered carport parking area.
#220213422

Medford

2130 E Jackson Street

4 Beds

2 Baths

2,292 Sq.Ft.

$439,000

MLS#: 220213422

First time on the market! This immaculate, move-in ready home has been lovingly maintained since it was custom built and features numerous recent upgrades (2021) including a lifetime warranty roof, new HVAC system, fresh exterior paint, updated appliances, and a detached custom storage shed. Pride of ownership shines throughout and a 1-year home warranty is included for added peace of mind! Ideally located within walking distance to South High School, this established neighborhood is filled with long-term residents who have called it home for decades—making it the perfect place to plant roots and raise a family. Don't miss your chance to tour this exceptional property!
#220209000

Medford

1355 Kaye Street

3 Beds

2 Baths

1,481 Sq.Ft.

$419,000

MLS#: 220209000

Come enjoy this comfortable family home featuring living and family rooms while located walking distance to South Medford High School. There are 3 very large bedrooms with large closets in each one (2 are walk-in closets). The peninsula kitchen is spacious with plenty of storage, and laminate flooring. The home boasts two heat pumps; one for each floor. And there is solar generation which eliminates the sellers' electric costs. This is a very warm, yet practical home waiting to become your new address.
#220212816

Medford

1250 Diamond Street

3 Beds

2 Baths

2,080 Sq.Ft.

$475,000

MLS#: 220212816

The 1395 square foot Darrington is a well-appointed two-story townhome that lives larger than most mid-sized plans. The dramatic entry leads to the open kitchen and living room area, with plenty of light and space for entertaining. The kitchen boasts ample counter space and cupboard storage and features an optional desk for convenience and organization. Upstairs, the main bedroom has a large closet and bathroom, and two other sizable bedrooms offer large closets and share a second full bathroom. *Photos are of a similar home*
#220213349

Medford

1802 Dragon Tail Place 10

3 Beds

2 Baths

1,395 Sq.Ft.

$389,990

MLS#: 220213349

 - property

Send a message

Message successfully sent.

Your message

What is 3 + 4 ?

Reason for contacting?

Sign Out

Virtual Assistant

Would you like to take the next step with this property? We can help you schedule a showing or virtual tour, or send you more details.

Yes, I would like more information.

Thank You for Your Reply, One of Our Agents will contact you as soon as possible

No, maybe later.

Thank you, you can always contact me via email, phone number or through the contact form.

Realhub AI

Lucy - Your AI-Powered Realtor

Update Your Temporary Password

Personalize your search

Enter your email and we'll notify you immediately when new listings match what you're looking for.

or enter email address

Already have an account ? Login here

Continue your home search

Already have an account ? Login here

We use cookies

We use cookies primarily for analytics to enhance your experience. By accepting, you agree to our use of these cookies. You can manage your preferences or learn more about our cookies policy.