Features & Amenities

Interior

  • Other Interior Features

    Breakfast Bar, Ceiling Fan(s), Double Vanity, Pantry, Soaking Tub, Wet Bar

  • Total Bedrooms

    3

  • Bathrooms

    3

  • 1/2 Bathrooms

    1

  • Basement YN

    NO

  • Cooling YN

    YES

  • Cooling

    Ceiling Fan(s), Central Air

  • Heating YN

    YES

  • Heating

    Electric, Oil, Propane

  • Pet friendly

    N/A

Exterior

  • Garage

    Yes

  • Garage spaces

    2

  • Construction Materials

    Frame

  • Other Exterior Features

    Garden

  • Parking

    Attached Carport, Garage Door Opener, Heated Garage, RV Access/Parking, Workshop in Garage

  • Patio and Porch Features

    Rear Porch, Deck

  • Pool

    No

  • View

    Mountain(s), Valley

Area & Lot

  • Lot Features

    Garden

  • Lot Size(acres)

    184.97

  • Property Type

    Farm

  • Architectural Style

    Ranch

Price

  • Sales Price

    $1,100,000

  • Tax Amount

    4092.29

  • Zoning

    EFU-C

  • Sq. Footage

    2, 204

  • Price/SqFt

    $499

HOA

  • Association

    No

School District

  • Elementary School

    Henley Elem

  • Middle School

    Henley Middle

  • High School

    Henley High

Property Features

  • Accessibility Features

    Accessible Entrance, Accessible Approach with Ramp

  • Foundation Details

    Concrete Perimeter

  • Sewer

    Septic Tank

  • Water Source

    Private, Well

Schedule a Showing

Showing scheduled successfully.

<
>
IN PERSON
VIA CHAT

What is 3 + 4 ?


Change time

Mortgage calculator

Estimate your monthly mortgage payment, including the principal and interest, property taxes, and HOA. Adjust the values to generate a more accurate rate.

Your payment

Principal and Interest:

$

Property taxes:

$

HOA fees:

$

Total loan payment:

$

Total interest amount:

$

Location

County

Klamath

Elementary School

Henley Elem

Middle School

Henley Middle

High School

Henley High

Listing Courtesy of Carla Yancey , Fisher Nicholson Realty, LLC

RealHub Information is provided exclusively for consumers' personal, non-commercial use, and it may not be used for any purpose other than to identify prospective properties consumers may be interested in purchasing. All information deemed reliable but not guaranteed and should be independently verified. All properties are subject to prior sale, change or withdrawal. RealHub website owner shall not be responsible for any typographical errors, misinformation, misprints and shall be held totally harmless.

Agent ChristySymons Your - Central Oregon Realtor

Broker

ChristySymons Your - Central Oregon Realtor

Call Christy today to schedule a private showing.


* Listings on this website come from the FMLS IDX Compilation and may be held by brokerage firms other than the owner of this website. The listing brokerage is identified in any listing details. Information is deemed reliable but is not guaranteed. If you believe any FMLS listing contains material that infringes your copyrighted work please click here to review our DMCA policy and learn how to submit a takedown request.© 2024 FMLS.
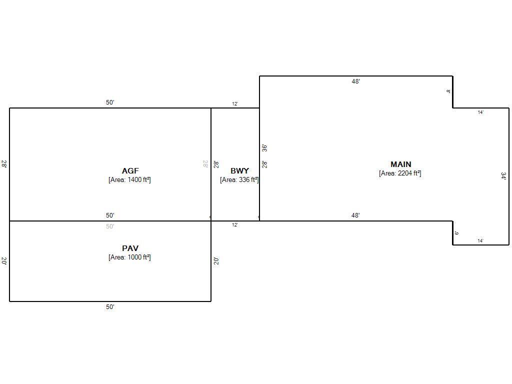
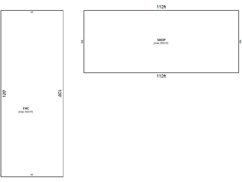
Farm - Home - Shop 
184 acre farm located minutes from Klamath Falls.  Built in 1984, this home is 2200sf and has 3 bedrooms & 3 ½ baths.  Features include; large kitchen, split floor plan, counter seating, rec room/flex space, mud room w/shower & toilet, F/A heat & AC, Monitor heater, woodstove, (2) 1-car garages, heated, w/workshop. Outside is a partially covered front deck, fenced area w/raised container beds and nice landscaping. 23'x45' covered parking area in back and a great hobby shed w/power, hot/cold water & finished interior.  The huge 5000 sf shop has a cement floor, power & water.  Includes office space, parts room, plumbed bathroom, loft storage, airline throughout, 4 roll-up doors & more.182 pivot irrigated acres primarily in the KBID & Midland Irrigation Districts. 3 Parcels.  Owners wish to sell all together,however there may be partition opportunities for the new buyer. Not enough space here to cover it all. Grain planted Fall 2025. Home/shed subject to Life Estate.

891 Cross Road

Message successfully sent.

What would you like to know?

What is 3 + 4 ?

Related Properties

The Rossetto Ranch is on the market! Scenic beauty meets income-producing potential. This one-of-a-kind 187± acre farm/ranch property captures breathtaking views of Mt. Shasta and the surrounding countryside. In the heart of Klamath farmland, this true agricultural property offers multiple income streams including a charming home, off-grid glamping site with potential short-term rental income, seasonal hunting lease, alfalfa crop lease, annual grain production and premium irrigation rights with an abundance of water. The upgraded irrigation systems, rich soils, and laser-leveled fields make this a farmer's dream. The landscape blends rolling hills, open pasture, and a small wetland flourishing with wildlife. 56x80 steel pole barn, newer 75 & 100 HP VFD pumps, updated main lines, fencing, and ranch roads. The updated-modern country farmhouse shines throughout with potential for an additional dwelling and possible partition into three parcels (per County Planning).
#220212481

Klamath Falls

392 Del Fatti Lane

2 Beds

1 Baths

1,024 Sq.Ft.

$895,000

MLS#: 220212481

75 Acre Farm in Poe Valley has a New Pivot put in 2022 and 2 Corner Wheel Lines,1999 Manufactured Home with Full Bathrooms attaching to every Bedroom. One half Bathroom off of the Large Living Room. Klamath Irrigation District provides 63 acres of Class A Water Rights & 11 Acres of Class B Water. 2 Pumps one for the Pivot and one for the Wheel Lines. Excellent Class 2&3 Soils. Fenced. Many options for Farming, Livestock & Country Living on this Property in a desirable location. Beautiful Views in every direction you look. Circular driveway! Field has been disced and ready to plant.
#220207149

Klamath Falls

20954 S Poe Valley Road

3 Beds

3 Baths

1,980 Sq.Ft.

$899,500

MLS#: 220207149

 - property

Send a message

Message successfully sent.

Your message

What is 3 + 4 ?

Reason for contacting?

Sign Out

Virtual Assistant

Would you like to take the next step with this property? We can help you schedule a showing or virtual tour, or send you more details.

Yes, I would like more information.

Thank You for Your Reply, One of Our Agents will contact you as soon as possible

No, maybe later.

Thank you, you can always contact me via email, phone number or through the contact form.

Realhub AI

Lucy - Your AI-Powered Realtor

Update Your Temporary Password

Personalize your search

Enter your email and we'll notify you immediately when new listings match what you're looking for.

or enter email address

Already have an account ? Login here

Continue your home search

Already have an account ? Login here